Av. Presidente Peron 500
Casa en venta en Villa Sarmiento
VENTA
USD 240.000
Detalle
Superficie del terreno 309m²
Ambientes 4
Cocheras 2
Baños 2
Dormitorios 3
Sup. Cubierta 193m²
Antigüedad 50 años
Orientación N
Descripción
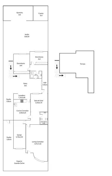
Al ingresar a la propiedad, nos recibe un cómodo espacio guarda coche y acceso directo a un amplio living comedor, ideal para reuniones familiares y sociales.Desde allí se conecta con la cocina comedor, acompañada por un lavadero independiente y un baño completo. También encontramos una sala de estar que ofrece calidez y funcionalidad para distintos *pasillo distribuidor conduce hacia el sector privado, donde se ubican dos dormitorios, ambos con buena iluminación natural, y un baño completo. Un hall conecta estos espacios con salida hacia el patio central, que funciona como pulmón de la *propiedad cuenta con entrada independiente y presenta la posibilidad de refaccionar la segunda parte de la casa para desarrollar un PH, lo que amplía su potencial tanto habitacional como de inversió*propiedad se complementa con un jardín, quincho y un cuarto auxiliar de guardado, lo que aporta practicidad y espacio *planta alta, se encuentra una terraza amplia, con múltiples posibilidades de *cochera cubierta completa la distribución, ofreciendo seguridad y comodidad para el vehículo. Se encuentra situada a pocos minutos de la estación Ramos Mejía (línea Sarmiento) y con rápido acceso a Avenida Rivadavia y Acceso Oeste, lo que facilita la conexión con distintos puntos del oeste y la Ciudad de Buenos Aires. Transporte público:La zona cuenta con gran conectividad gracias a las líneas de colectivo 166, 172, 182, 242, 390 y 634, que brindan servicio hacia Morón, Ramos Mejía, Liniers, Caseros, San Justo y el centro porteño. A pocas cuadras del Shopping del Oeste, un punto de referencia en la zona. También cuenta con cercanía a colegios y centros de salud. En conjunto, esta propiedad reúne amplitud, funcionalidad y espacios al aire libre que la convierten en una excelente opción para familias que buscan comodidad y versatilidad en una zona residencial. Propiedad accesible para personas con movilidad reducida - Ley 5115. Todas las operaciones inmobiliarias son objeto de intermediación y conclusión del Martillero y Corredor Inmobiliario Pablo Martín Tintorero CUCICBA 8843 CMCPM * Legales: Las medidas indicadas son aproximadas y al solo efecto orientativo, las medidas reales surgirán del título de propiedad respectivo, por lo cual se deja expresamente aclarado que pueden existir diferencias con las medidas exactas que surgen de la realidad y/o de la escritura. Asimismo, los importes de tasas, servicios y expensas indicados están sujetos a verificación y/o ajuste. En cumplimiento de las leyes provinciales vigentes que regulan el corretaje inmobiliario, Ley Nacional 25.028, Ley 22.802 de Lealtad Comercial, Ley 24.240 de Defensa al Consumidor, las normas del Código Civil y Comercial de la Nación y Constitucionales. Pablo Martin Tintorero CUCICBA 8843 - CMCPM 3013
Características
Servicios
Ubicación
Abrí tu franquicia Mudafy
Súmate a la red inmobiliaria de mayor crecimiento del país





































