Sarmiento 4200
Departamento en venta en Almagro
VENTA
USD 197.470
Esta propiedad pertenece al siguiente Desarrollo:

Detalle
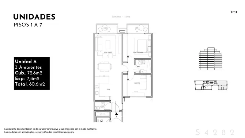
Superficie total 81m²
Ambientes 3
Baños 1
Dormitorios 2
Toilettes 1
Sup. Cubierta 73m²
Apto Profesional
Orientación N
Descripción
3 ambientes al frente con balcón – Sarmiento 4282, Almagro Confort, diseño y eficiencia en un edificio sustentableAmplio departamento de 3 ambientes al frente con una distribución moderna y funcional.Cuenta con un luminoso living con cocina comedor diario y balcón al frente, ideal para disfrutar de espacios abiertos y buena ventilació*cocina americana está integrada al ambiente principal, brindando amplitud y practicidad.Dispone de toilette de recepción, dos dormitorios, uno de ellos con balcón propio, y un baño *edificio ofrece comodidades y tecnología sustentable:• Espacio para bicicletas• Laundry de uso común• Cerraduras digitales• Doble vidriado hermético (DVH)• Muros de hormigón celular RETAK para mejor aislación térmica• Termotanques y paneles solares para reducir costos energéticos Un desarrollo que combina diseño, confort y eficiencia energética, reduciendo gastos comunes y cuidando el medio ambiente.Contamos con financiación flexible —¡consúltanos para más información! Puntos de interés cercanos:Ubicado a metros de Av. Medrano y Av. Corrientes, con gran oferta de bares, restaurantes, universidades y centros de salud.Próximo a la UTN, Hospital Italiano, Parque Centenario y múltiples propuestas culturales.Medios de transporte:Excelente conectividad con la línea B de subte (estación Medrano) y numerosas líneas de colectivo (19, 24, 36, 71, 92, 99, 124, 128, 146). Posee acceso para personas con movilidad reducida.* S.R.L. Mat CUCICBA *
Características
Servicios
Ubicación
Abrí tu franquicia Mudafy
Súmate a la red inmobiliaria de mayor crecimiento del país











