Italia 400
Oficina en alquiler en Vicente López
ALQUILER
USD 7.500
Detalle
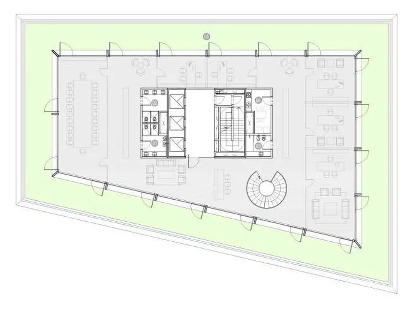
Superficie total 500m²
Cocheras 8
Sup. Cubierta 500m²
Descripción
-Características del edificio Desarrollo: 2 subsuelos, planta baja y 6 pisos. Plantas: Libres de 1.000 m², divisibles en 2 o 4 unidades. Zócalo comercial: En planta baja. Cocheras: 120 unidades distribuidas en 2 subsuelos. Bicicletero y vestuarios: Con duchas para el personal. Categoría: AAA Certificación: LEED Gold Año de construcción: *Superficie propia total: 5.512 m² Ascensores: 4 Hyundai de alta velocidad. Seguridad: CCTV en zonas comunes. Sistema contra incendios: Hidrantes y extinguidores en todos los pisos. Climatización: Aire acondicionado VRV. Eficiencia energética: Doble vidriado hermético. Sistema de refrigeración VRV de alta eficiencia. Techos verdes. Iluminación de bajo consumo. Eficiencia en el uso del agua: Griferías de bajo consumo con reducción del gasto en un 40%. -Características de la oficina Unidad: Medio piso en primer piso, a estrenar. -Gastos Gastos aproximados: USD 4,8/m² (BNA). HERNÁN PISARENKO C.S.I. 6839 / C.P.I 8274 Zufriategui 627, Piso 5°, Vicente López, GBA Cerrito 1070, piso 11 – dpto. 136, CABA Para el caso de publicación de venta, dejamos asentado que la venta de este inmueble está sujeta a la tramitación del Código de Transferencia de Inmuebles (COTI), de conformidad con la normativa vigente (Res. AFIP 2371/08, 2439/08 y ccs.) por parte del propietario. LEY 5859 “Para los casos de locaciones de inmuebles con destino habitacional en los que el locatario sea una persona física, el monto máximo de la comisión a cobrar será el equivalente al cuatro con quince centésimos por ciento (4,15%) del valor total del respectivo contrato, a cargo del locador.” Este aviso cumple con lo regulado en la Ley 5115 de C.A.B.A. – “Los avisos publicados por corredores inmobiliarios por cualquier medio gráfico o informático, que promuevan operaciones inmobiliarias, deberán contener información acerca de las condiciones de accesibilidad para las personas con discapacidades físicas.”
¿Querés saber si la propiedad está a buen precio?
Descubrilo con nuestro mapa de m2 por barrio.

















